73 m3 luxuriously renovated flat just below Halászbástya, Ist district! For Sale

click to view more
397 500 EUR
5 445 EUR /m2
Reference number PRO ID #00080
Address I. Dónáti utca
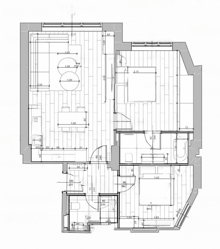
Floor area 73 m2
Bedrooms 2
Number of rooms 3
Condition To renovate
No. of levels of the building 3
Floor Level 2
Elevator No
Interior height Less than 3m
Air conditioner Yes
Available immediately Yes
Orientation South
View Garden
Balcony size 3 m2
Parking Street

Property description

A luxurious, fully renovated 73 m², 3-room apartment is for sale directly beneath the Fisherman's Bastion.

This bright 2nd-floor apartment features a living room, 2 bedrooms, 2 bathrooms, and a balcony attached to one of the bedrooms. The living room and balcony face a quiet, tree-lined garden.

Airbnb is permitted in the building.

If desired, the apartment can be divided into two studio flats.

The price is not dependent on the layout. Garage rental options are available in the neighboring street.

Are you intrested?

Please do not hesitate to contact us! Our team will get in touch with you as soon as possible.