A tastefully furnished penthouse apartment on 66 m2 with a huge terrace in a residential park off Szépvölgyi út! Eladó

kattints a továbbiakért
345 000 EUR
5 227 EUR /m2
Hivatkozási szám PRO ID #00162
Cím III. Szépvölgyi út
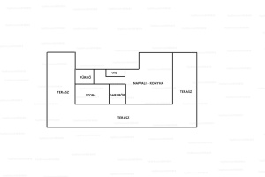
Alapterület 66 m2
Hálószobák 1
Szobák száma 2
Állapot Felújított
Építés éve 2001 - 2010
Az épület szintjeinek száma 4
Emelet 4
Lift Igen
Belmagasság Kevesebb mint 3m
Légkondicionáló Igen
Azonnal költözhető Igen
Külön fürdő és WC Igen
Tájolás Dél-Nyugat
Kilátás Panorámás
Erkély mérete 62 m2
Parkolás + 12 M HUF
Közös költség 50 000 HUF / month HUF/hó

Ingatlan leírás

For sale in the La Siesta 1 residential park is a tastefully furnished penthouse apartment.

The exceptionally bright living space is centered around an open-plan living room, dining area, and kitchen. Custom oak built-in furniture is present in every room, and a large wardrobe provides space for luggage.

The bathroom is equipped with a spacious bathtub and double sinks.

The rooms feature modern heating and cooling air conditioning units, and a massive terrace surrounds the entire apartment, accessible from every room.

The kitchen is equipped with modern appliances, and high-speed internet and IP TV are available.

A parking space in the underground garage is included, which must be purchased separately.

An additional parking space can be bought for 12 million HUF.

Asking price: 138 M HUF

Felkeltette érdeklődését?

Kérjük, ne habozzon kapcsolatba lépni velünk! Csapatunk a lehető leghamarabb felveszi Önnel a kapcsolatot.